Vertragsnaturschutz und Biotopbetreuung, Kaiserslautern (Rheinland-Pfalz)
Unser Büro Enviro-Plan ist für die Biotopbetreuung und die Vertragsnaturschutz-Beratung im Landkreis Kaiserslautern und im Bereich der Stadt Kaiserslautern zuständig.
Weiterlesen: Vertragsnaturschutz und Biotopbetreuung, Kaiserslautern (Rheinland-Pfalz)
Fohrde Umspannwerk PV-Visualisierung
Für unseren Auftraggeber EnBW Energie haben wir im letzten Jahr eine fotorealistische Visualisierung eines geplanten Umspannwerkes erstellt. Die Anlage sollte nahe einem bereits bestehenden Umspannwerk auf einer landwirtschaftlich genutzten Fläche errichtet werden. Insgesamt wurden Visualisierungen von fünf Standorten, im Abstand zwischen 300 und 500 gelegen, ausgearbeitet.
Solaranlagen "Engelswies" Inzigkofen (Baden-Württemberg)
Dieses interdisziplinäre Projekt ist wieder ein gutes Beispiel für unsere Projektbearbeitung aus einer Hand. Wir erarbeiten alle notwendigen Unterlagen und Gutachten, die für Genehmigungen von Solarparks erforderlich sind. Nach erfolgter Genehmigung unterstützt unsere Umweltbaubegleitung den Vorhabenträger vor, während und nach der baulichen Umsetzung der Solaranlage.
Weiterlesen: Solaranlagen "Engelswies" Inzigkofen (Baden-Württemberg)
Neubau Freianlagen des kommunalen Kindergartens, Gau-Odernheim (Rheinland-Pfalz)
Der ca. 1.000 m² große Kindergarten Außenbereich in Gau-Odernheim wurde von Enviro-Plan geplant und hergestellt.
Weiterlesen: Neubau Freianlagen des kommunalen Kindergartens, Gau-Odernheim (Rheinland-Pfalz)
Bebauungsplan "Kreuznacher Str. 22", Gensingen (Rheinland-Pfalz)
Zur Umnutzung eines Geländes und zur Schaffung von Wohnraum hat unser Ressort Stadtplanung für die Gemeinde Gensingen einen Bebauungsplan aufgestell.
Weiterlesen: Bebauungsplan "Kreuznacher Str. 22", Gensingen (Rheinland-Pfalz)
Datenbank Biosphärenreservat Rhön (Hessen)
Für das Schutzgebiet “Biosphärenreservat Rhön” wurde eine Datenbank eingerichtet. Es vereinfacht die Verwaltung und Analyse von Daten und ermöglicht effiziente Arbeits- und Entscheidungsprozesse.
Hockeyplatz 1 Salinental, Bad Kreuznach (Rheinland-Pfalz)
Unser Büro Enviro-Plan hat die Hockeyplatz Instandsetzung im Stadion Salinental (Bad Kreuznach) geplant und begleitet. Die Sanierung des Kunstrasens wurde erfolgreich durchgeführt, sodass die Hockey Mannschaften wieder fleißig trainieren können.
Weiterlesen: Hockeyplatz 1 Salinental, Bad Kreuznach (Rheinland-Pfalz)
PV-Anlage "Freimersheim" (Rheinland-Pfalz)
Für eine geplante Photovoltaik Freiflächenanlage in Freimersheim (Region Alzey) hat unsere Stadtplanung einen geeignete Standort für den Solarpark ermittelt (Alternativenprüfung) und die erforderlichen Unterlagen für das Zielabweichungsverfahren erstellt.
Solaranlage "Leibertingen" (Baden-Württemberg)
Eine Solaranlage mit einer maximale Leistung von bis zu fünf Megawatt wurde in Leibertingen (Baden-Württemberg) errichtet. Die Bauphase der Photovoltaikanlage wurde durch unsere Umweltbaubegleitung begleitet.
Sportzentrum Bürgel BA 1, Bodenheim (Rheinland-Pfalz)
Das langersehnte Sportzentrum „Bürgel“ in Bodenheim wurde von gutschker-dongus geplant und wird in mehreren Bauabschnitte errichtet. Der erste Bauabschnitt, der Bau einer Turn- und Gymnastikhalle, wurde 2019 realisiert.
Weiterlesen: Sportzentrum Bürgel BA 1, Bodenheim (Rheinland-Pfalz)
Teilflächennutzungsplan Windenergie, Bad Sobernheim (Rheinland-Pfalz)
Für die Verbandsgemeinde Bad Sobernheim hat unsere Stadtplanung ein Standortkonzept und einen sachlichen Teilflächennutzungsplan erarbeitet, um geeignete Flächen für die Windenergie zu sichern und auszuweisen.
Weiterlesen: Teilflächennutzungsplan Windenergie, Bad Sobernheim (Rheinland-Pfalz)
Verkehrsanlagen Panoramahaus, Bingen am Rhein (Rheinland-Pfalz)
Das Panoramahaus Rheinblick ist mit seinen 380 Wohneinheiten eines der größten Wohngebäude in Bingen. Die Außenanlage und die Erschließung der Verkehrswege wurde von Enviro-Plan komplett überplant und instandgesetzt.
Weiterlesen: Verkehrsanlagen Panoramahaus, Bingen am Rhein (Rheinland-Pfalz)
Wettbewerb Bad Münster am Stein (Rheinland-Pfalz)
Enviro-Plan hat beim Architektenwettbewerb „Ersatzfreiraumkante Gradierwerk Ost in Bad Münster“ teilgenommen und einen Entwurf zur Neugestaltung der „Ersatzfreiraumkante“ für die abgerissene Saline eingereicht.
Weiterlesen: Wettbewerb Bad Münster am Stein (Rheinland-Pfalz)
Änderung B-Plan für Hotel am Hafen, Bingen am Rhein (Rheinland-Pfalz)
In Abstimmung mit dem Vorhabenträger und der Stadt Bingen am Rhein wurden von unserer Stadtplanung die Unterlagen für die Bebauungsplanänderung erstellt.
Weiterlesen: Änderung B-Plan für Hotel am Hafen, Bingen am Rhein (Rheinland-Pfalz)
Erneuerung Schulsportanlage Veldenz-Gymnasium, Lauterecken (Rheinland-Pfalz)
Die alte Schulsportanlage des Veldenz-Gymnasiums, die aus einer Naturrasenfläche bestand, wurde 2018 zu einer ca. 7.000 m² große Sportanlage umgewandelt.
Weiterlesen: Erneuerung Schulsportanlage Veldenz-Gymnasium, Lauterecken (Rheinland-Pfalz)
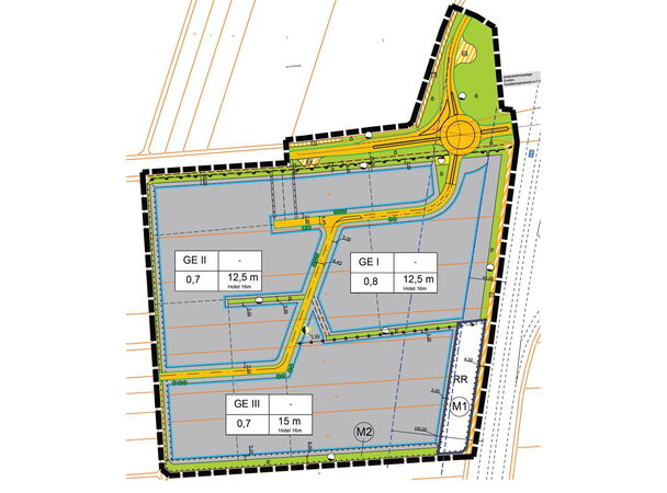
Gewerbegebiet an der A 63, Wörrstadt (Rheinland-Pfalz)
Wir haben die Unterlagen für den Bebauungsplan „Businesspark mit Verkehrsdienstleistungszentrum“ inklusive der erforderlichen Umweltprüfung für das circa 12,75 ha große Plangebiet erstellt.
Weiterlesen: Gewerbegebiet an der A 63, Wörrstadt (Rheinland-Pfalz)
Instandsetzung und Neubau Trockenmauer, Ingelheim am Rhein (Rheinland-Pfalz)
Für dieses interdisziplinäre Projekt wurden Leistungen der Ressorts Landschafts- und Objektplanung, Tierökologie / Artenschutz und Umweltbaubegleitung durchgeführt.
Weiterlesen: Instandsetzung und Neubau Trockenmauer, Ingelheim am Rhein (Rheinland-Pfalz)
Solarpark "Engelswies" (Baden-Württemberg)
Zur Veranschaulichung von geplanten Windkraftanlagen oder PV-Freiflächenanlage erstellen wir realistische Visualisierung und bewerten die entstehende Auswirkung auf das Landschaftsbild.
Biotopkartierung, Schwarzenborn (Hessen)
Das Untersuchungsgebiet der Biotop- und Lebensraumtypenkartierung mit einer Größe von etwa 1.289 ha umfasste Teile der Natura 2000-Gebiete „Knüll“ und „Truppenübungsplatz Schwarzenborn“.
Leerstandsrisikorechner Rheinland-Pfalz
2016-2017 wurde an der Internetplattform "Leerstandsrisiko-Rechner" mitentwickelt. Die Plattform ermöglicht die Ermittlung künftiger Bedarfe und Veränderungen in Kommunen bis zum Zieljahr 2035.
Neugestaltung Schulhöfe und Buswendeplatz Schulzentrum Münchwiesen, Bad Sobernheim (Rheinland-Pfalz)
Der Schulhof der Grundschule und der Realsschule Plus des „Schulzentrum Münchwiesen“ in Bad Sobernheim wurde von Enviro-Plan bedarfsgerecht neu gestaltet.
Renaturierung Ententeich und Entenbach, Bingen am Rhein (Rheinland-Pfalz)
Weiterlesen: Renaturierung Ententeich und Entenbach, Bingen am Rhein (Rheinland-Pfalz)
Wegebeitragskataster, Altenglan (Rheinland-Pfalz)
Die Geodatenverarbeitung hat für die Verbandsgemeindeverwaltung Altenglan ein Wegebeitragsinformationssystem zur Verwaltung und Umlegung der Wegebeiträge auf die einzelnen Grundstückseigentümer entwickelt.
Weiterlesen: Wegebeitragskataster, Altenglan (Rheinland-Pfalz)
Windpark "Atzenhain" (Hessen)
Durch die enge Zusammenarbeit mit dem Auftraggeber und die gute Abstimmung mit der Genehmigungsbehörde konnte die Umweltbaubegleitung die Errichtung des Windparks arten- und umweltfreundlich gestalten.
Windpark "Aalen-Waldhausen" (Baden-Württemberg)
Seit über 20 Jahren stellen wir sicher, dass Windparks umweltverträglich umgesetzt werden. Auch bei diesem Projekt haben wir überprüft, ob die neuen Windkraftanlagen im Einklang mit den Belangen des Arten-und Naturschutzes stehen.
Weiterlesen: Windpark "Aalen-Waldhausen" (Baden-Württemberg)
Freizeitgelände „Am Ochsenborn“, Ingelheim am Rhein (Rheinland-Pfalz)
Bei dieser öffentlichen Grünfläche, die Naherholung sowie Spielangebote für Kinder und Jugendliche bietet, stand eine nachhaltige und naturnahe Gestaltung im Fokus.
Weiterlesen: Freizeitgelände „Am Ochsenborn“, Ingelheim am Rhein (Rheinland-Pfalz)
Neubau Quartierpark „Schulze-Park“, Bingen am Rhein (Rheinland-Pfalz)
Die neue Parkanlage bietet verschiedene Nutzungsmöglichkeiten, beispielsweise Rasenfläche zum Spielen, Sitzmöglichkeiten zum Verweilen und Obstbäume zum Ernten.
Weiterlesen: Neubau Quartierpark „Schulze-Park“, Bingen am Rhein (Rheinland-Pfalz)
Sanierung Stützmauer K 58, Schloßböckelheim (Rheinland-Pfalz)
Unsere Umweltbaubegleitung Rheinland-Pfalz begleitete die Instantsetzung einer Stützmauer, um die naturschutzfachlichen und -rechtlichen Auflagen während den Bauarbeiten sicherzustellen.
Weiterlesen: Sanierung Stützmauer K 58, Schloßböckelheim (Rheinland-Pfalz)
Windpark "Gau-Heppenheim" (Rheinland-Pfalz)
Im Rahmen der Genehmigung einer Windenergieanlage hat die Geodatenverarbeitung die Daten zum Übertrag in das Kompensationskataster Rheinland-Pfalz, aufbereitetet.
Wohngebiet "Am Lettweilerweg", Odernheim am Glan (Rheinland-Pfalz)
Für das cica 2,5 ha große Wohngebiet in Odernheim am Glan haben wir den Bebauungsplan, die Umweltprüfung und -bericht und die Erschließungsplanung erstellt.
Weiterlesen: Wohngebiet "Am Lettweilerweg", Odernheim am Glan (Rheinland-Pfalz)
Friedhofserweiterung, Bodenheim (Rheinland-Pfalz)
Die Friedhofserweiterung wurde als hochwertige Freianlage mit hoher Raum- und Aufenthaltsqualität gestaltet, die normale Erdgräber mit speziellen Urnenbestattungen zu einem runden Gesamtkonzept kombiniert.
Weiterlesen: Friedhofserweiterung, Bodenheim (Rheinland-Pfalz)